良品計画の住宅事業を担うMUJI HOUSEが、企業の遊休資産を丸ごと再価値化する新事業「MUJI INFILL 0 一棟リノベーション」を開始した。第1弾として北陸電力が保有する旧社宅2棟(富山市・金沢市)の全面改修に着手し、2026年春から順次入居が始まる予定だ。MUJI HOUSE専務取締役の田鎖郁男氏は発表会の冒頭、「長く使えて、暮らしに合わせて変えられるというMUJIの思想を、一棟全体にまで拡張した取り組みになる」と述べ、新築偏重の住環境に対する新しい選択肢であることを強調した。
背景には、企業が抱える“社宅の塩漬け問題”がある。北陸電力・事業開発部長の屋鋪誠氏は、働き方の多様化や北陸新幹線の開通などにより「社宅の利用率が徐々に低下し、廃止するケースが増えていた」と説明する。遊休化した社宅は、維持管理コストや固定資産税といった負担に加えて老朽化による安全面のリスク、周辺景観を損なう懸念もあったという。屋敷氏は「単なる改修ではなく、これからの時代にふさわしい価値をつくりたいと考えた」と語り、無印良品に声をかけた理由については「暮らしを自分らしくアレンジできる“余白のある空間”というMUJIの思想に強く惹かれた」と明かした。
建て替えではなくリノベーションを選んだ背景には、建築コストの高騰もある。MUJI HOUSEのリノベーション事業本部の豊田輝人本部長は「2015年を100とすると新築の原価は140〜145程度まで上昇している」と示し、新築のハードルが全国的に高まる中でストック再生の必要性を語った。今回のプロジェクトでも、建物を更地にして建て替えるよりも「リノベーションのほうが確実に安くなる」としている。
左から北陸電力の屋鋪氏、MUJI HOUSE の豊田氏、田鎖氏
今回採用された「MUJI INFILL 0」は、これまで個人向けに提供してきた高断熱リノベーション商品を一棟丸ごとに適用する取り組みだ。特徴は、まず建物内部を「フルスケルトン化」する点にある。豊田氏は「築30年前後の建物では雨漏りや水漏れなどの不具合リスクがあるため、構造体まで一度むき出しにして状態を確認し、必要な補修を施したうえで再構築する」と説明した。そのうえで、断熱材を壁・床・天井へ全面的に施工し、寒冷地レベルの樹脂サッシとペアガラスを採用して断熱等級5以上(新築基準は4)を確保する。
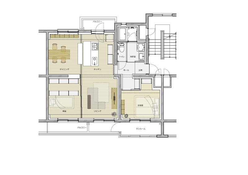
空間設計もMUJIらしい。従来の3DK社宅が持っていた細かな間仕切りは大胆に撤去し、光と風が通る大きなワンルームのような構成へと刷新される。可変性の要となるのが、複数の引き戸を軸とした“間取りの編集性”だ。引き戸の開閉によって、1LDKにも2LDKにも、さらにワークスペース付きの広い空間にも変化する。富山・金沢の両物件にはオリジナルのアイランドキッチンやロングカウンターキッチンも設置され、「住む人が暮らし方を自由に決められるように、余白を残したい」と豊田氏は述べている。
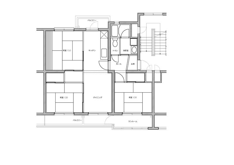
アクアルーチェ北安江(石川県金沢市)のリノベーション前
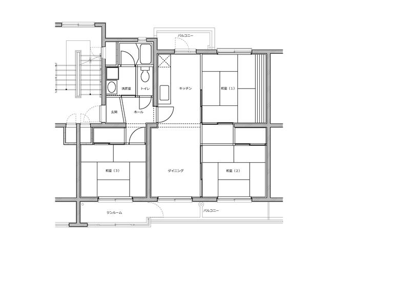
アクアルーチェ北安江(石川県金沢市)のリノベーション後プランA/B
市政に合わせた企業戦略
入居ターゲットはファミリー層が中心になる見込みだ。屋鋪氏は「広い間取りで、夫婦と小さなお子さんの家族世帯を想定している」と述べ、家賃は富山で9万円台、金沢で11万円台を検討していると明かした。
立地も北陸エリアならではの特性を備えている。特に富山の物件は次世代型路面電車「ライトレール」の駅まで徒歩数分で、JR富山駅へ約20分でアクセスでき、市が進めるコンパクトシティ政策にも沿う位置づけだ。北陸電力側は「山間部への拡大ではなく、人口や生活機能が集まるべき都市動線上にある」と説明し、地域のまちづくりとの親和性も強調した。
北陸電力は既に3棟の社宅を賃貸物件として活用しており、今回の結果を踏まえて他の物件でもMUJIとの協業を検討していく方針だ。屋鋪氏は「今回のプロジェクトを通じて、持続可能で快適なまちづくりの新しいモデルを社会に示したい」と語り、民間インフラ企業としての役割拡張にも意欲を見せた。
施工からプロモーションまで一括対応するMUJI
MUJI HOUSEは企画・設計や施工だけでなく、物件の魅力を伝えるプロモーションやコミュニティ形成にも関与する。豊田氏は「間取り紹介や設計コンセプトを紹介するWebサイトや映像を制作し、不動産会社の募集ページへ送客できるよう動線設計までサポートする」と語り、近隣店舗でのチラシ設置や、無印良品店舗での暮らしイベント、“入居後の家具相談”までを担うことを説明した。団地再生プロジェクト「MUJI×UR」で培ったノウハウを、企業社宅の再生にも応用する形だ。
プレス向け発表会が実施された有明ガーデン(東京都江東区)内の無印良品にリノベーションのショールームがある
可変性のあるクローゼット・シェル。自由に間取りを設計できる
組合せキッチン・ダイニングセットによって、ロングカウンターキッチンにも対面式のアイランドキッチンにも幅広なダイニングキッチンにも変更できる(写真は壁付けロングキッチン)
今回の協業は同社にとって「遊休不動産リノベーション」という新たな事業領域の幕開けでもある。MUJI HOUSEは現在、(1)個人向け新築・リノベ、(2)URとの団地再生を展開しているが、企業向けの一棟リノベ事業を「三本目の柱として育てたい」と位置づける。総務省「土地・住宅統計調査統計表(2023年調査)」によると給与住宅(いわゆる社宅)は130万2000戸で、UR・公社の借家の71万6000戸と比べて潜在市場は大きいと見ているという。
新築が難しくなる時代に、既存ストックを“新築以上”へと再生する。MUJIが企業とともに進めるこの取り組みは、社宅の用途転換にとどまらず、地域の住環境や企業資産のあり方そのものをアップデートする試みとなりそうだ。









